

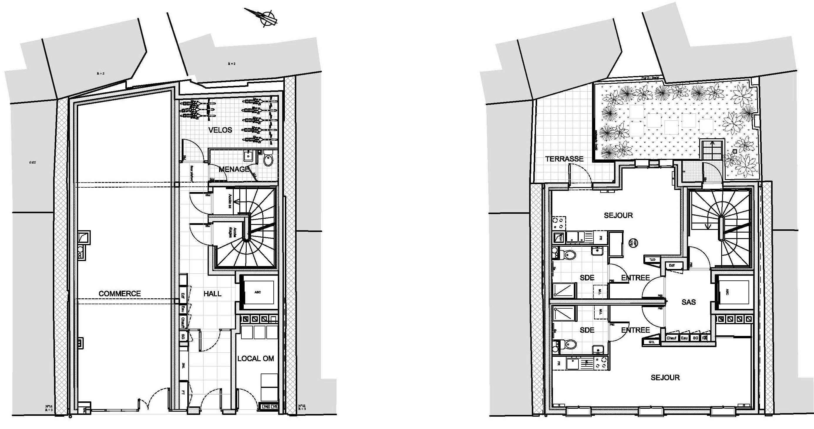
L’ancien immeuble étant extrêmement dégradé, I3F a décidé de réaliser une démolition/reconstruction avec conservation du gabarit et des percements.
Nous avions proposé une première version avec un parement en briques, ainsi que des menuiseries aluminium d’un style contemporain. Immobilière 3F a préféré une version proche de l’aspect du bâtiment démoli.
Les gardes corps en tôle perforée s’inspirent du motif stylisé des gardes corps d’origine. L’enduit plâtre et chaux bi-colore souligne le rythme des percements.










Les 8 studios mono-orientés sont lumineux et bénéficient d’une belle hauteur sous plafond.



MO: IMMOBILIERE 3F
MOE: ATELIER D’ARCHITECTURE ELC, ARCHITECTE MANDATAIRE; STUDETECH BET ET ECONOMISTE
PROGRAMME: REALISATION DE 8 STUDIOS ET UN COMMERCE
COUT TRAVAUX: 1,1 M € HT
HQE: RT 2012 – 20% + LABEL NF HABITAT ET ENVIRONNEMENT
REALISATION: 2021
CREDIT PHOTO : Christophe Demonfaucon